Таунхаус, Морион ЖК, 10 Показать на карте
Бердск
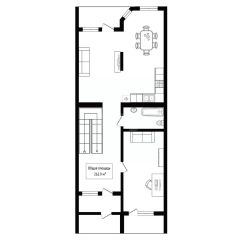
Жилой комплекс ''Морион'' - это современный комплекс однотипной застройки с технологией свайного фундамента. Проект будет реализован из 25 таунхаусов на территории общей площади 40 ГА. В каждом доме 5-6 квартир площадью от 58 до 144 м2 в предчистовой отделке, от уютных вариантов для молодой семьи до просторных многоуровневых таунхаусов, где вы сможете использовать каждый метр с пользой. Уже построено 22 из 25 жилых домов.Закрытая, охраняемая территория, на которой уже обустроены зоны отдыха, детская и спортивная площадки, проведено озеленение придомовой территории. Благоустройство территории отвечает всем современным тенденциям. Отдельно хотели бы выделить удаленность комплекса от центральных магистралей, что дает вам сниженный уровень шума и пыли , а также отметить высокую точку расположения, ведь это самое светлое место в городе Бердск.Район на сегодня уже почти полностью сформирован для комфортной жизни. В шаговой доступности — остановка общественного транспорта, развитая социальная и коммерческая инфраструктура.И самое главное — сейчас интересное время для покупки!
75 м2
2 этажа
Кирпич
- Показать контакты
- Добавить в избранное
75 м2
2 этажа
Кирпич
6 800 000
90 667 /м2
