Дом, Земляничка ДНТ, 12 Показать на карте
Бердск
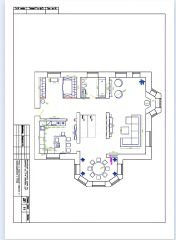
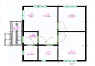
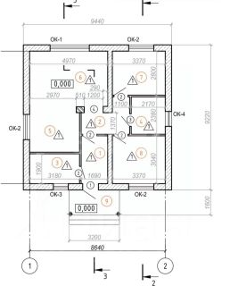
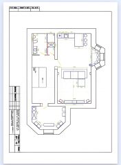
Представленный дом обладает рядом преимуществ, которые делают его привлекательным выбором для проживания: Преимущества расположения- Экологическая обстановка: Дом находится в районе с сосновым бором, что обеспечивает чистый воздух и тихую атмосферу.- Приватность: Несмотря на расположение в черте города, участок окружён природой, обеспечивая чувство уединённости.- Инфраструктура: Школы, детские сады, магазины и аптеки расположены в непосредственной близости, что удобно для повседневной жизни. Особенности участка- Площадь участка: 14 соток предоставляют достаточно пространства для реализации любых идей по благоустройству территории.- Взрослые сосны: Сохранённые взрослые сосны добавляют эстетической привлекательности участку и создают приятную природную среду. Архитектурные особенности- Конструкция стен: Стены выполнены по технологии ''два кирпича — утеплитель — облицовка'', что обеспечивает надёжность и энергосбережение.- Высота потолков: Высокие потолки (3 метра) придают пространству ощущение простора и свободы. Инженерные системы- Центральные коммуникации: Подведены газ, электричество и вода, что упрощает эксплуатацию и снижает затраты на обслуживание. Внутренняя планировка- Отсутствие внутренней отделки: Это даёт возможность будущему владельцу воплотить собственные идеи и предпочтения в оформлении интерьера.- Просторная кухня-гостиная: Создаёт комфортное пространство для семейного общения и приёма гостей. - Спальные зоны: Четыре изолированные спальни на втором этаже обеспечивают личное пространство каждому члену семьи, на первом этаже есть гостевая спальня. Мастер спальня на втором этаже со своей гардеробной и своим санузлом, а так же с выходом на терассу.- Санитарные узлы: Наличие трех санузлов повышает уровень комфорта и удобства проживания. Дополнительные преимущества- Возможность договориться о строительных материалах: Материалы, оставшиеся на участке, могут быть использованы новым владельцем по согласованию.Этот дом идеально подойдёт тем, кто ценит природу, уют и функциональность, а также желает создать уникальное жилое пространство, отражающее личные вкусы и потребности. Так же рассмотрим обмен на вашу недвижимость с доплатой, как жилую так и коммерческую. Дополнительно оплачивается комиссия с покупателя.Код пользователя: 98753Номер в базе: 10297947
350 м2
2 этажа
Кирпич
- Показать контакты
- Добавить в избранное
350 м2
2 этажа
Кирпич
34 000 000
97 143 /м2
