Термин "Чистая продажа" означает, что в квартире никто не прописан или
есть куда выписаться и вывезти вещи. Это лучший вариант для покупателя.
Вероятность срыва сделки минимальна.
Этажей2
Площадь участка10 соток
Общая площадь100 м2
Материал домадерево
ЭлектричествоЕсть
Газоснабжениецентральное
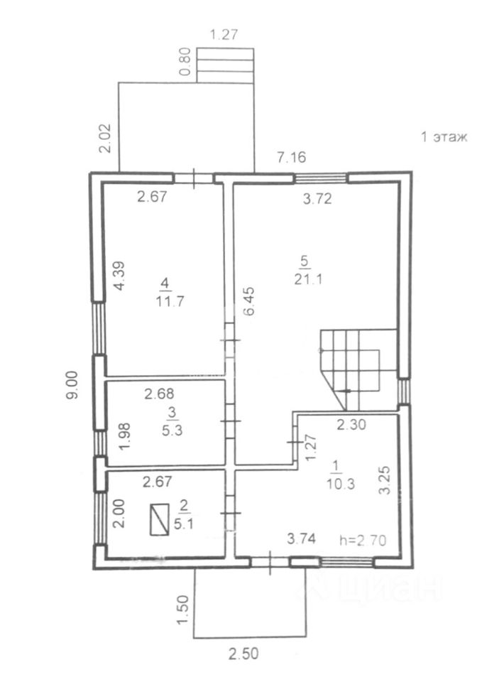
Код объекта: 1030371. Предлагаем к продаже дом в Южном микрорайоне г. Бердск. Дом находится на участке 10 сот. Построен из бруса, утеплен минеральными плитами, фундамент ленточный. Санузел в доме (септик), вода центральная, горячая от бойлера. Дом отапливается электрокотлом, есть твердотопливный. Газовая труба подведена к дому, осталось только подключить к системе. Планировка: на первом этаже: коридор, хозяйственная комната, санузел, кухня, гостиная. Из кухни выход на террасу 5м2. На втором этаже: 4 спальни, коридор, санузел. На участке посадки: можжевельники, ели, смородина, малина, клубника, полукультурка. Гаража и бани нет. Собственники взрослые, чистая продажа. Рассмотрим варианты обмена на студию с доплатой. Звоните, договоримся о просмотре.
Код объекта: 1030371. Предлагаем к продаже дом в Южном микрорайоне г. Бердск. Дом находится на участке 10 сот. Построен из бруса, утеплен минеральными плитами, фундамент ленточный. Санузел в доме (септик), вода центральная, горячая от бойлера. Дом отапливается электрокотлом, есть твердотопливный. Газовая труба подведена к дому, осталось только подключить к системе. Планировка: на первом этаже: коридор, хозяйственная комната, санузел, кухня, гостиная. Из кухни выход на террасу 5м2. На втором этаже: 4 спальни, коридор, санузел. На участке посадки: можжевельники, ели, смородина, малина, клубника, полукультурка. Гаража и бани нет. Собственники взрослые, чистая продажа. Рассмотрим варианты обмена на студию с доплатой. Звоните, договоримся о просмотре. Цена снижена!