Если цена в объявлении изменится, мы сразу сообщим вам об этом на электронную почту.
Нажимая «Подписаться», вы соглашаетесь с правилами.
продам дом, 52-я5 000 000 ₽
19 ноя
Дата публикации объявления
Обн. 18 дек
Дата обновления объявления
65
Количество просмотров (+ просмотры за сегодня)
33 333 ₽/м²
Чистая продажа
Термин "Чистая продажа" означает, что в квартире никто не прописан или
есть куда выписаться и вывезти вещи. Это лучший вариант для покупателя.
Вероятность срыва сделки минимальна.
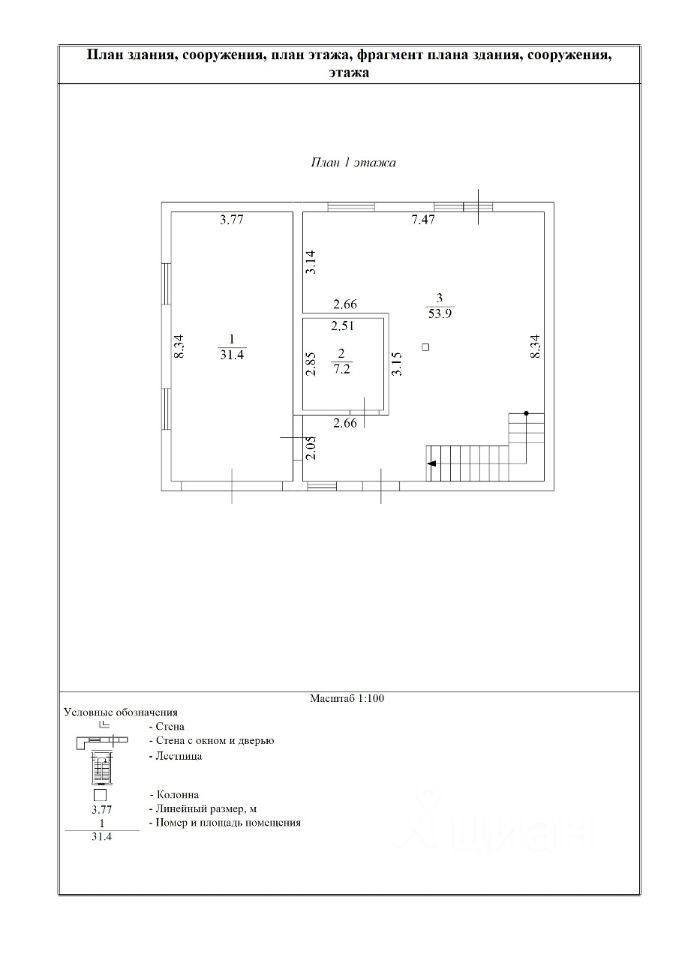
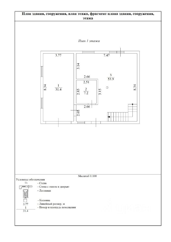
Этажей2
Площадь участка5,5 соток
Общая площадь150 м2
ЭлектричествоЕсть
Газоснабжениецентральное
Цена подарок, у кого есть деньги достроить, дача утеплена 150 зимой ночевал без проблем, вложений без отделки миллион максимум,хороший торг у капота