Если цена в объявлении изменится, мы сразу сообщим вам об этом на электронную почту.
Нажимая «Подписаться», вы соглашаетесь с правилами.
продам 2-к, Некрасова, 4510 000 000 ₽
18 сен
Дата публикации объявления
Обн. 18 сен
Дата обновления объявления
288
(+4)
Количество просмотров (+ просмотры за сегодня)
211 864 ₽/м²
Чистая продажа
Термин "Чистая продажа" означает, что в квартире никто не прописан или
есть куда выписаться и вывезти вещи. Это лучший вариант для покупателя.
Вероятность срыва сделки минимальна.
Предлагается к продаже квартира в кирпичном доме бизнес класса ЖК Современник 2023 года постройки. Собственник, не агенство.
Куплена за наличный расчет. Без обременений. Один собственник.
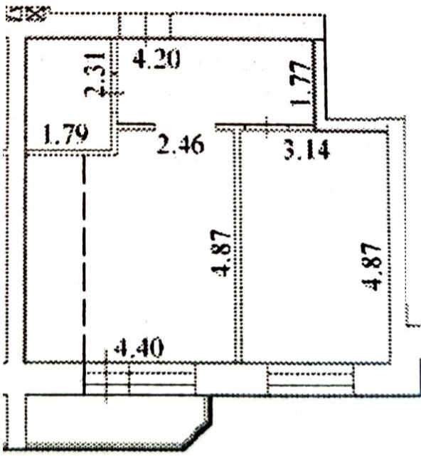
Общая площадь 47.2 кв.м
Квартира под самоотделку, выполнена стяжка пола и штукатурка стен, установлены радиаторы, пятикамерные окна, хорошая входная дверь. Высота потолков 3 метра.
На территории ЖК есть детские и спортивные площадки, зона отдыха.
Подземная и надземная парковка, видеонаблюдение, круглосуточная охрана.
ЖК Современник расположен на тихой улице центрального района, недалеко от станции метро Покрышкина, Сибирская и Красный проспект. Близость метро, центральных магистралей.
Рядом находятся детские сады и школы.
Предлагается к продаже квартира в кирпичном доме бизнес класса ЖК Современник 2023 года постройки. Собственник, не агенство.
Куплена за наличный расчет. Без обременений. Один собственник.
Общая площадь 47.2 кв.м
Квартира под самоотделку, выполнена стяжка пола и штукатурка стен, установлены радиаторы, пятикамерные окна, хорошая входная дверь. Высота потолков 3 метра.
На территории ЖК есть детские и спортивные площадки, зона отдыха.
Подземная и надземная парковка, видеонаблюдение, круглосуточная охрана.
ЖК Современник расположен на тихой улице центрального района, недалеко от станции метро Покрышкина, Сибирская и Красный проспект. Близость метро, центральных магистралей.